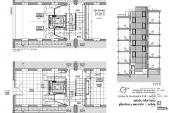
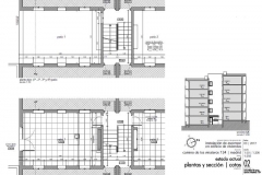
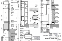
Camino Vinateros 134, proyecto ascensor.

 

Se realizó el proyecto para la inclusión de un ascensor en la comunidad, en la zona de patio, con estructura metálica, y cerramiento en vidrio, con 5 paradas. La obra se ejecuta a finales del 2017.