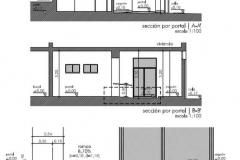
Calle Ajofrin, adecuación portal

 

Con motivo de la supresión de barreras arquitectónicas del inmueble se hizo un proyecto de reestructuración de la entrada principal, consistente en la demolición de la entrada para ejecutar una nueva rampa a nivel del acceso exterior del ayuntamiento.